唐人阁论坛2025_品茶qm论坛官网_全国同城凤凰楼免费茶楼300元_群狼谷全国论坛

首页 > 产品中心 > 配电及工控用户 > 框架式断路器 > RDW1系列智能型框架式断路器
人民电器RDW1系列智能型框架式断路器
人民电器RDW1系列智能型框架式断路器
人民电器RDW1系列智能型框架式断路器
人民电器RDW1系列智能型框架式断路器
人民电器RDW1系列智能型框架式断路器

RDW1系列智能型框架式断路器

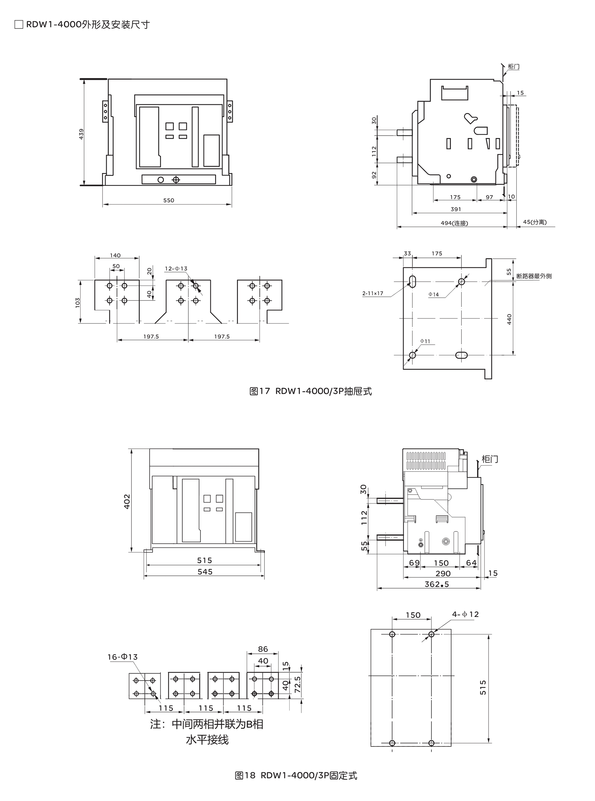
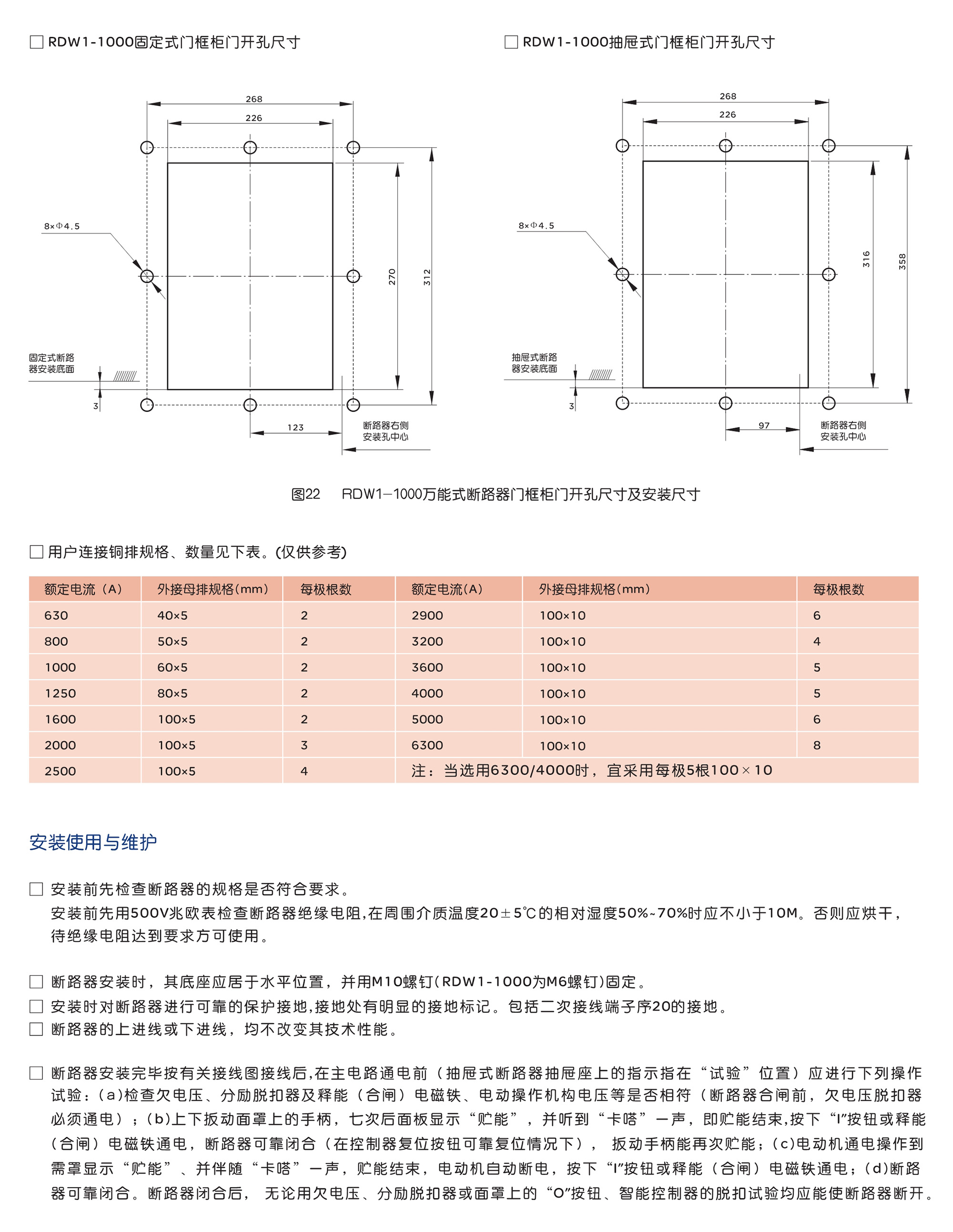
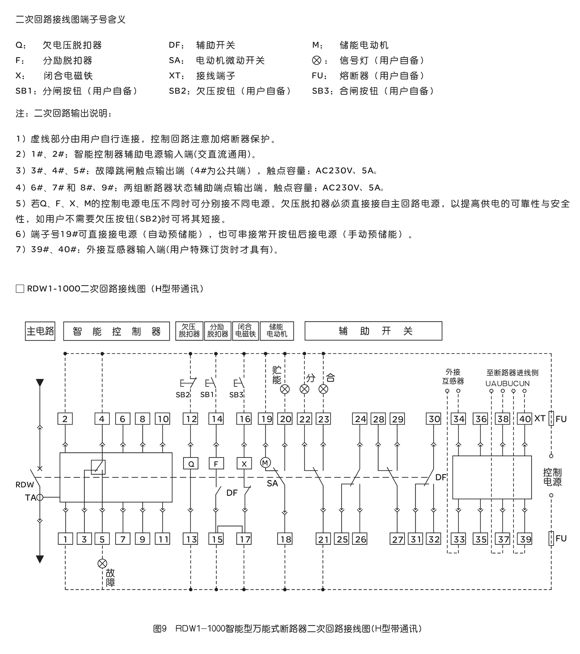
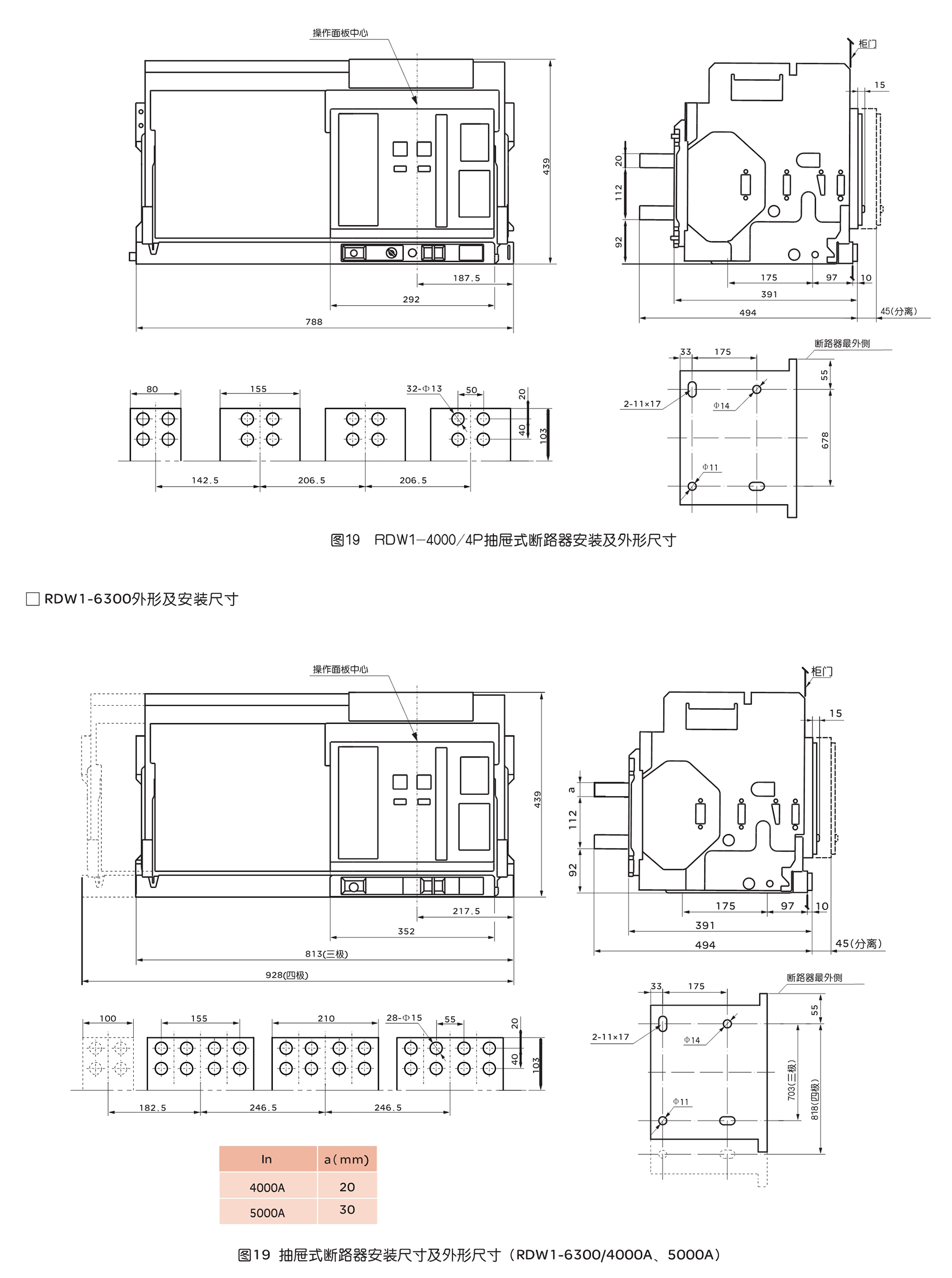
RDW1系列智能型万能式低压断路器,适用于交流50Hz,额定工作电压400V或690V,额定电流200A~6300A的配电网络中,用来分配电能和保护线路及电源设备免受过载、欠电压、短路、单相接地等故障的危害。断路器具有智能化?;すδ?,选择性保护精确,能提高供电可靠性,避免不必要的停电。同时带有开放式通讯接口,可实现四遥功能,以满足控制中心和自动化系统的要求。该断路器不带智能控制器及互感器时可作隔离器用。 产品符合:GB/T 14048.2 IEC 60947-2 标准。
服务热线:400 898 1166
产品选型 解决方案 联系我们

资料维护微信:182 5777 7355;电话:0577-61731110;QQ:228348720
注:网上所有产品资料仅供参考,如有疑问请打电话400 898 1166核实确认,尤其是开孔尺寸与技术参数等重要参数,为了避免公司技术更新或升级有变动,给你带来不必要的损失,谢谢配合!
咨询热线

咨询热线

在线客服
公众号

关注人民电器公众号 了解集团最新资讯